Adosados de 4 dormitorios en venta en Mijas – R5229979
More Info
Resumen
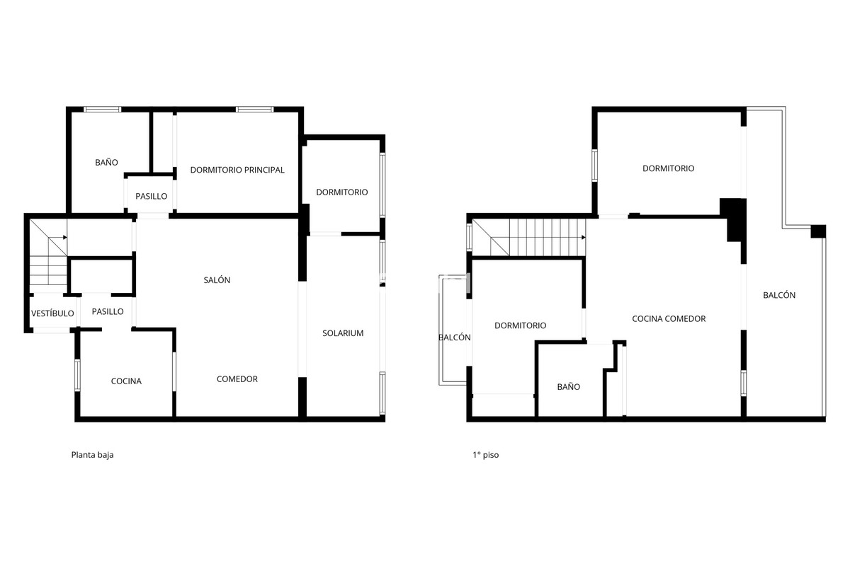
Casa pareada de dos plantas en Calahonda (Mijas), dividida en dos apartamentos independientes, ideal tanto para residencia como para inversión. La propiedad cuenta con un total de 4 habitaciones, 2 baños, 2 salones y 2 cocinas, ofreciendo versatilidad y un alto potencial de rentabilidad, con un ROI estimado del 7% anual.
En la planta baja, el apartamento dispone de un amplio jardín privado y terraza, proporcionando una excelente zona exterior para disfrutar del clima mediterráneo.
La planta superior ofrece un segundo apartamento con una gran terraza con vistas al mar, aportando luminosidad y un atractivo especial para alquiler vacacional o larga temporada.
La vivienda forma parte de una urbanización con parking comunitario, jardines y piscina comunitaria, lo que añade comodidad y valor al conjunto. Su ubicación es estratégica: junto a un campo de golf, cerca de la autopista AP-7 y con parada de autobús junto al complejo, facilitando la conexión con Mijas, Marbella y el resto de la Costa del Sol.
La propiedad requiere renovación, lo que permite adaptarla al gusto del comprador o potenciar aún más su rendimiento como inversión.
Una oportunidad única en una de las zonas más demandadas de Calahonda.
Características
- Transporte público

























